Plans Architecturaux
STCAI dresse tous types de plans d’architecture établis à l’échelle du 1/50° ou du 1/100°
PLANS D’INTERIEUR
Le plan d’intérieur est la représentation précise, par niveau, de l’ensemble des détails d’un bâtiment. Il est destiné à la réalisation d’études de rénovation, de réhabilitation ou de restructuration d’un bâtiment ou d’une partie de bâtiment.
Le plan d’intérieur comporte les épaisseurs de murs, les cloisons, les embrasures, la position et le sens d’ouverture des ouvrants, les hauteurs des allèges, les poutres apparentes, les cheminées, les cours, les terrasses, les balcons, les cages d’escalier, les paliers, la désignation des pièces, l’altitude des planchers et paliers, les hauteurs sous-plafonds et sous-poutres.
PLANS DE FACADES
Le plan de Façades est est la représentation en projection de l’aspect extérieur d’un bâtiment. Il est réalisé pour la restructuration d’un bâtiment ou d’une partie d’un bâtiment.
Il reporte l’ensemble de tous les éléments caractéristiques à savoir les ouvertures (portes et fenêtres) de chaque niveau, les balcons, les ferronneries et les faîtages.
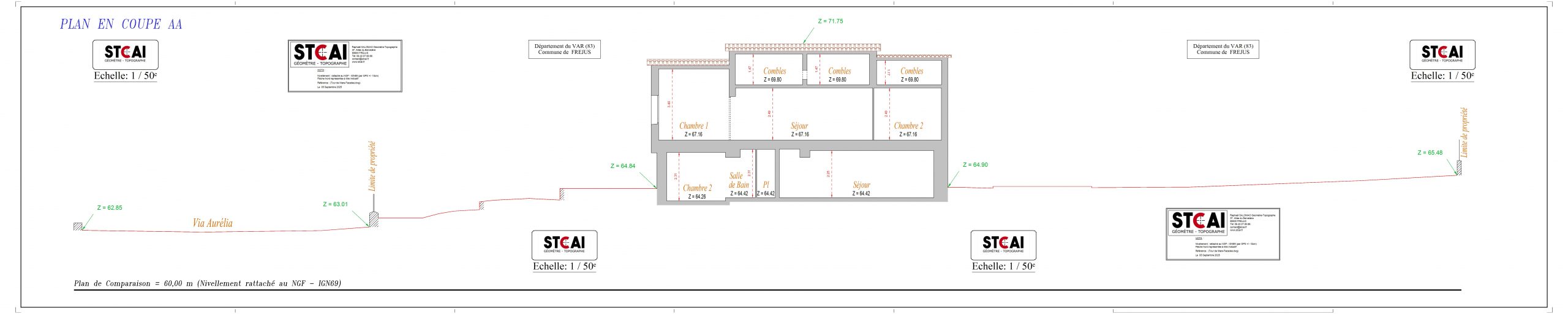
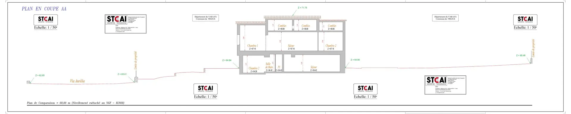
PLANS DE COUPE
Le plan de Coupe est la représentation graphique montrant le terrain ainsi que ses constructions par une vue en profil. Il est établi pour les études de réhabilitation ou de restructuration d’un bâtiment ou d’une partie de bâtiment.
Le plan de Coupe permet l’identification des volumes extérieurs des constructions ainsi que les hauteurs relatives des différents niveaux, les poutres, la désignation des pièces, les hauteurs de linteaux et des allèges des différentes ouvertures et menuiseries.









